Aller au contenu principal
Dynamo
activité
architecture
équipe
serveur
architecture
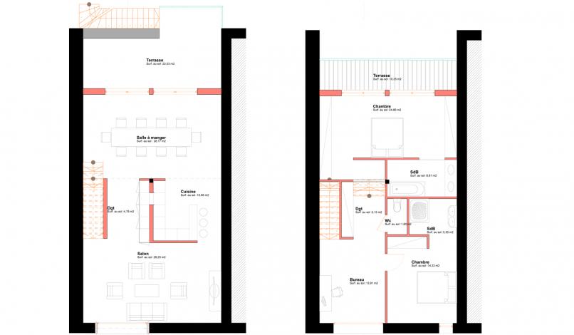
Maison D
-
2012
Maison S
Maison M
Maison C
Il Castello
Maison D
Maison V
Maison M/V
Fin - Individuel
+ vidéo
+ d'info
Mission
N/A
Maître d'ouvrage
N/A
Surface
N/A
Coût du projet
N/A
Le projet
N/A
Public
Habitat collectif
Habitat individuel
Bureau
Commerce
Divers