La Guinguette
- Metz
- 2009
Mission
ESQ-APS-APD-PC-PRO
Maître d'ouvrage
SCI "la guinguette"
Surface
350 m² S.H.O.N.
Coût du projet
1 000 000 € H.T.
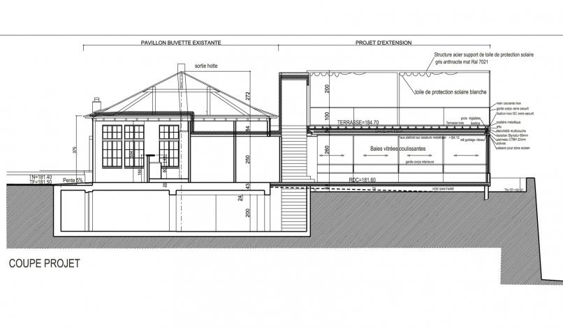
Le projet
Le projet consiste en la rénovation du pavillon buvette de l’Esplanade, en secteur classé Monument Historique, et création d’une extension bar-restaurant permanent d’une cinquantaine de couverts. L’ancien pavillon est entièrement rénové, au plus proche de son état d’origine, en accord avec l’Architecte des Bâtiments de France, et l’extension, en opposition par son architecture contemporaine de métal et de verre, se juxtapose en reprenant la forme carrée du bâti ancien. Le carré de l’extension est interrompu par un voile ondulant en acier Corten, élément signalétique du projet, accompagnant le promeneur jusqu’au belvédère sur le plan d’eau de Metz.








