Place Turenne
- Thionville
- 2013
Mission
DIAG
Maître d'ouvrage
Ville de Thionville
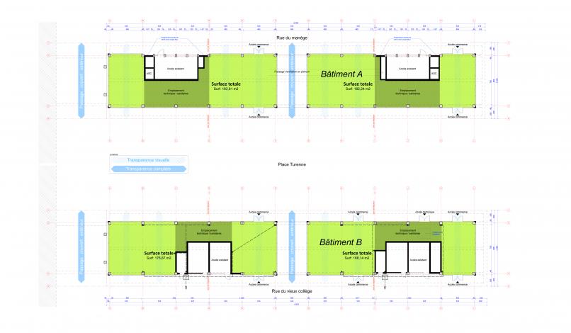
Surface
792 m²
Coût du projet
480.000€ H.T. (version 1) à 520.000€ H.T. (version 2)
Le projet
Le projet présenté a pour objet la fermeture des vides-pilotis en rez-de-chaussée des bâtiments bordant la place Turenne à l’Est et à l’Ouest. Afin de conserver la transparence de ces vides sous-immeubles (prescription ABF), la fermeture des volumes en rez-de-chaussée est faite par des châssis vitrés en aluminium. Ces verres pourront être teintés ou traités dépolis progressifs pour certains. Les sous-faces des portes à faux seront rhabillées et permettront, par le biais de luminaires encastrés, la mise en scène de ces parois vitrées et colorées.
- Perspective depuis la rue du manège

- Perspective depuis la place Turenne

- Perspective depuis la place Turenne

- Perspective depuis la rue du vieux collège

- Proposition d'aménagement intérieur

- Proposition d'aménagement intérieur

- Plan version 1

- Plan version 2

- Façades version 1

