Bureaux Applicam
- Metz - Technopôle
- 2005
Mission
Complète
Maître d'ouvrage
Applicam
Surface
3500 m² S.H.O.N.
Coût du projet
2 250 000 € H.T.
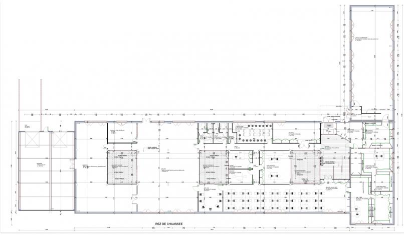
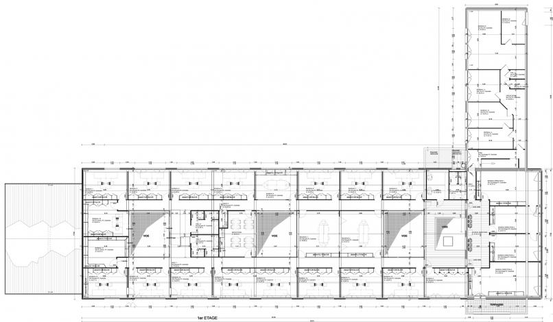
Le projet
Ce projet de bureaux, situé à l’angle de l’avenue Sébastopol et la rue des Cloutiers, s’inscrit dans un travail sur la matérialité du bâtiment. Ainsi, à travers deux matériaux naturels, « le bois et le béton », deux volumes simples s’interpénètrent. Les patios créés au cœur du volume bois permettent d’éclairer naturellement les circulations internes et créent des petits jardins de détente.



- Plan masse

- Plan RDC

- Plan R+1

