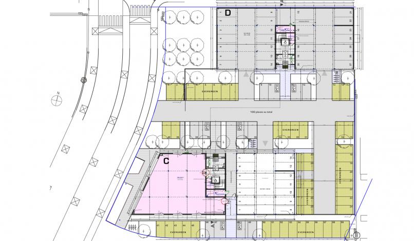
Le projet s’installe sur une parcelle de 1 ha au cœur du Grand Projet de Ville de Metz. Les bâtiments y prennent place tout en libérant des espaces verts et de grandes zones de parking qui privilégient les systèmes d’infiltration des Eaux Pluviales. Ce projet s’inscrit dans une démarche environnementale, tant par les procédés utilisés que par les choix constructifs mis en oeuvre: - Châssis triple vitrage équipé de stores solaires intégrés - Isolation extérieure - VMC double flux - Limitation des zones de stationnement extérieures, notamment en intégrant les places sous l’emprise bâtie - Système d’infiltration des eaux de pluies sur les stationnements extérieurs - Système de chauffage rafraîchissant par pompe à chaleur haut rendement Et également dans la gestion des déchets de chantier à travers une charte de tri sélectif.
Palm Park
- Metz - Technopôle
- 2010
Mission
Complète
Maître d'ouvrage
Palm promotion
Surface
10 000 m² S.H.O.N.
Coût du projet
8 750 000 € H.T.
Le projet






