Bureaux Lippmann
- Yutz
- 2012
Mission
Complète (Architecte mandataire)
Maître d'ouvrage
Communauté d’agglomérations - Porte de France
Surface
1888 m²
Coût du projet
1 878 500 € H.T.
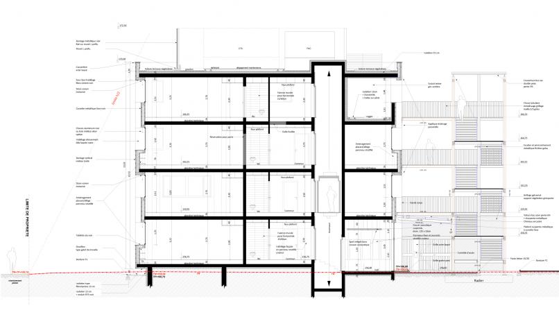
Le projet
Le projet, qui recevra une labélisation B.B.C. (Bâtiment Basse Consommation) par un organisme agréé, se développe sur 4 niveaux. Afin d’obtenir cette certification, une VMC double-flux par plancher technique sera installée, ainsi qu’une toiture végétalisée assurant une récupération des eaux pluviales Le choix structurel est de type poteaux/poutres avec un remplissage des façades en panneaux bois préfabriqués vêtus de mélèze massif.







- Coupe

- Détail portes

