Groupe scolaire
- Beyren-lès-Sierck
- 2014
Mission
Complète (Architecte mandataire)
Maître d'ouvrage
Commune de Beyren-Lès-Sierck
Surface
N/A
Coût du projet
1 100 000 € H.T.
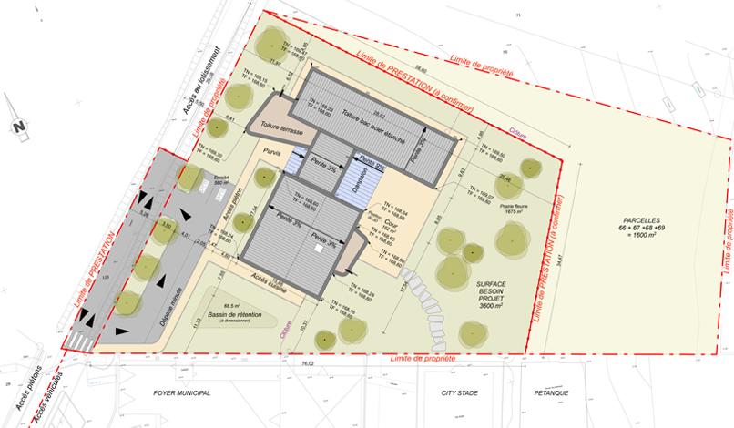
Le projet
Le projet se présente comme un bâtiment de plein pied en forme de L «chahuté» par des boites ludiques de tailles et de couleurs différentes. Ce parti architectural a pour but de permettre une bonne lisibilité des espaces pour les enfants : différencier les espaces de travail ou de repas, où l’enfant doit être plus posé et concentré, et les espaces ludiques ou culturels, communs aux deux structures. Le projet est orienté de façon à ce que les espaces soient majoritairement éclairés à l’Ouest ou à l’est. Le projet du groupe scolaire répond à un certain nombre d’objectifs environnementaux prioritaires définis par la Commune de Beyren-les-Sierck. De plus, le projet intègre la nouvelle réglementation RT 2012.
- Vue de l'entrée

- Vue cour de récréation


- Vue de l'entrée

- Vue de la cour de récréation

- Axonométrie

- Plan masse

- Plan projeté

- Coupes

