Maison des Associations
- Manom
Mission
Concours (2e place)
Maître d'ouvrage
Ville de Manom
Surface
1031 m²
Coût du projet
1.800.000 € H.T.
Le projet
N/A
- Perspective depuis la rue Saint Louis

- Entrée principale Grand rue

- Perspective du patio

- Salle des fêtes

- Plan masse

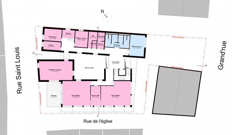
- Plan Rez-de-Chaussée

- Plan R+1

- Coupe longitudinale sur entrée

- Coupe transversale sur patio

