La maison des talents
- Thionville
- 2008
Mission
Complète
Maître d'ouvrage
Région Lorraine
Surface
320 m² S.H.O.N.
Coût du projet
474 000 € H.T.
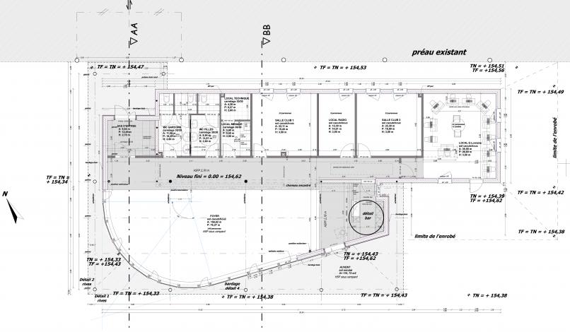
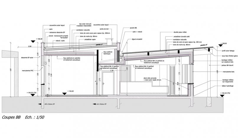
Le projet
Le projet consiste en la création d’un foyer destiné aux lycéens. Implanté dans la cour, il se distingue du bâti existant par sa forme arrondie et son bardage en mélèze. La maison des lycéens se raccorde au préau existant qui se prolonge en périphérie du projet par un large auvent.
- Texte alternatif












