Aller au contenu principal

Dynamo

  • activité
  • architecture
  • équipe
  • serveur

architecture

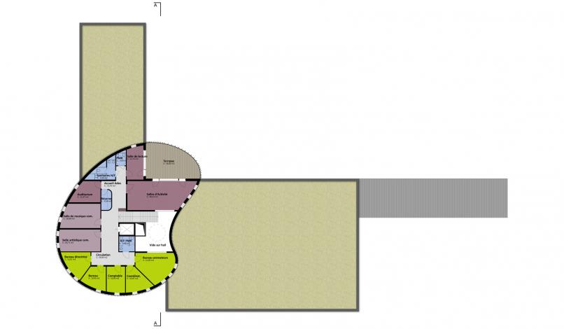
Le haricot magique
 - Cattenom
  • Maison de la Nature
  • Unité de vie transitoire
  • Logements provisoires
  • Groupe scolaire
  • Sporting-club
  • Ecole Marcel Pagnol
  • Multi-accueil St Hubert
  • La Boîte à couleurs
  • La maison des talents
  • Maison des Associations
  • Le haricot magique
  • Ecole Hettange-Grande
  • Fin - public

+ vidéo + d'info

Mission
Concours (2e place)
Maître d'ouvrage
Commune de Cattenom
Surface
1053 m²
Coût du projet
1.427.000 € H.T.
Le projet

      

  •  
  •  
  •  
  •  
  •  
  •  
  •  
  • Public
  • Habitat collectif
  • Habitat individuel
  • Bureau
  • Commerce
  • Divers

DYNAMO Associés     5, place Simone Veil - 57100 Thionville      tél. +33(0)3 82 82 12 72     fax +33(0)3 82 82 12 73     contact@dynamo-associes.fr

site réalisé par ùbdesign & endemic