Les Panoramiques
- Metz-Queuleu
- 2013
Mission
ESQ - APS - APD - PC - PCG
Maître d'ouvrage
Habiter promotion
Surface
5 500 m² S.H.O.N.
Coût du projet
6 950 000 € H.T.
Le projet
Le projet s’installe sur l’ilot 8, situé au nord-ouest du futur écoquartier de Metz, qui se caractérise par un de ces bâtiments se développant sur 7 niveaux au-dessus du rez-de-chaussée et qui abritera un commerce et de nombreuses activités de service. De par sa hauteur, les décalages de volumes, les 51 appartements profiteront de vues remarquables sur Metz et alentours. Ce bâtiment sera alors perçu comme signal urbain de ce nouveau quartier.

- Vue depuis la rue G. Ducrocq


- Perspective depuis la rue G. Ducrocq

- Perspective de nuit

- Axonométrie générale

- Plan masse

- Coupe longitudinale

- Coupe latérale

- Coupe latérale

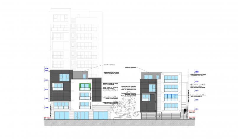
- Elévation ouest

