Résidence les Forges
- Terville
- 2011
Mission
Complète
Maître d'ouvrage
SCCV "le fer à cheval"
Surface
2 400 m²
Coût du projet
2 300 000 € H.T.
Le projet
Située au coeur de Terville, à l’emplacement des anciens ateliers du maréchal ferrant, la résidence «les Forges» développe, dans une architecture contemporaine, des appartements du T2 au T5 répondant aux exigences actuelles en terme de confort et d’accessibilité tout en intégrant un label Très Haute Performance Energétique avec, entre autre, une isolation par l’extérieur. Les appartements sont ouverts sur de grandes terrasses ou loggias créant des respirations entre les 3 volumes qui composent le bâti. Enfin, la brique et le bois en façade ainsi que l’acier de la structure des balcons donnant sur la rue de Verdun, évoquent la mémoire du lieu en rappellant les anciens bâtiments et leur destination...
- Perspective depuis la rue de Verdun

- Vue depuis la rue de Verdun

- Vue depuis la rue Thiers

- Vue arrière

- Détail

- Détails

- Détails

- Entrée rue Thiers

- Plan masse

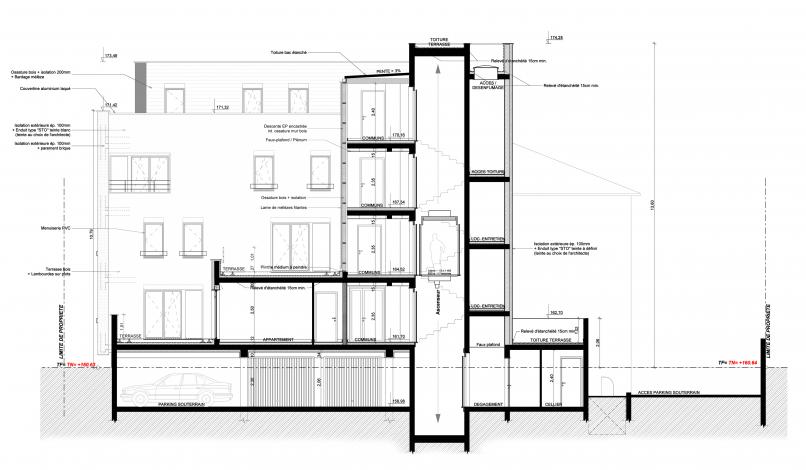
- Coupe latérale

- Façade - Coupe longitudinale

