Résidence La Fabrique
- Montigny-Lès-Metz
- 2007
Mission
ESQ-APS-APD-PC-PCG
Maître d'ouvrage
GV Project
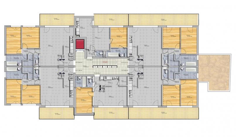
Surface
1500 m² S.H.O.N.
Coût du projet
1 350 000 € H.T.
Le projet
Ce secteur de la ville est caractérisé par sa mixité fonctionnelle (artisanat, logements, commerces...). C’est pourquoi le choix formel du bâtiment s’oriente vers cette esthétique industrielle décrivant une série de «cheid» en toiture. Ce profil relie ainsi la forme architecturale à la fonction d’habitation. Le projet apparaît comme une trace, une mémoire de l’ancienne activité sur ce terrain. L’entrée est surmontée par une oeuvre du sculpteur Pierre-Marie LEJEUNE, un élément en acier, inox et verre s’inscrivant comme un signal (lumineux la nuit) fort pour les habitants de cette résidence.




- RDC

- R+1

- R+2

