Le projet consiste en la création d’un petit immeuble collectif de 6 logements route de la Briquerie à Thionville. Ce projet expérimental devra atteindre l’objectif fixé par la maitrise d’ouvrage soit un label BBC (avec l’objectif 20% inf. à 65KWhep/m²/an). Cette performance énergétique s’appui sur différente technique à savoir : -La conception très compacte du projet -Le choix de l’orientation des grandes baies au sud (apport solaire) -Murs ext. composés de panneau bois préfa intégrant 35 cm. d’isolation de ouate de cellulose insufflé. -Le toit terrasse sera isolé par 25 cm de mousse polyuréthane + végétalisation ép.=12cm. -Le système de chauffage sera collectif et se résume à un système VMC double flux complété par un système d’accumulation d’eau chaude d’un ballon grande contenance alimenté par des panneaux solaire. -La production d’eau chaude sera assurée par le même système. -Il sera indispensable de vérifier par un blowertest la parfaite étanchéité à l’air du bâtiment avant la finition des logements int.




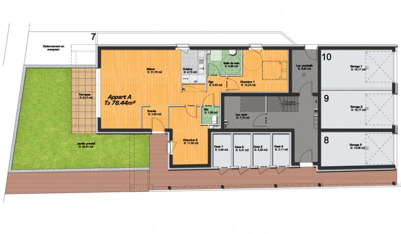
- RDC

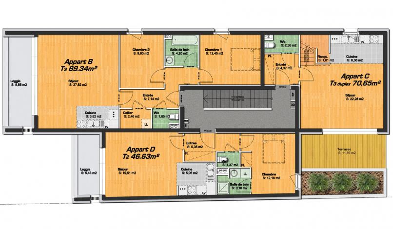
- R+1

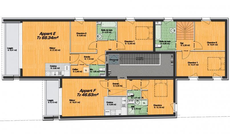
- R+2

